產品概述
電動不銹鋼浮動球閥是由智能型電動執行器和不銹鋼球閥裝配而成,采用軟密封結構。球閥流道為直通式,流阻小,流通能力強,介質滯留少。球閥的球心為不銹鋼,通過精細研磨使其光滑在開關的時候與密封面無間隙回轉確保閥門的密封性。通過以(220V、380V)電源電壓為驅動接受(4-20mA)工業信號,來推動閥桿帶動球心的旋轉來達到開關和調節。主要應用于然氣、清水、溶劑、弱酸、微腐性氣體、液體等輸送管道上作為介質流量的開關和調節。
產品特點
1、流體阻力小、球閥是所有閥類中流體阻力較小的一種,即使是縮徑 球閥,其流體阻力也相當小。
2、止推軸承減小閥桿摩擦力矩,可使用閥桿長期操作平衡靈活。
3、閥座密封性能好,采用聚四氟乙烯等材料制成的密封圈,結構易于密封,而且球閥的閥封能力隨著介質的壓力的增大而增大。
4、閥桿密封可靠,由于閥桿只作旋轉運動而不做升降運動,閥桿的填 料密封不易破壞,且密封能力隨著介質的壓力增設而增大。
5、由于聚四氟乙烯材料具有良好的自潤滑性,與球體的摩擦損失小,幫球閥的使用壽命長。
6、下裝式閥桿和閥桿頭部凸階防止閥桿噴出,如火災造成閥桿密封破壞,凸階與閥體間還可以形成金屬接觸,確保閥桿密封。

主要零件材質
| 零件名稱 | 材料 | |||
| 閥體 | WCB | 304(CF8) | 316(CF8M) | 316L(CF3M) |
| 球體 | 2Cr13+氮化處理 | 304 | 316 | 316L |
| 閥桿 | 2Cr13 | 304 | 316 | 316L |
| 閥座密封圈 |
PTFE(聚四氟乙烯)、PPL(對位聚苯) |
|||
| 填料 | V型PTFE四氟填料、柔性石墨 | |||
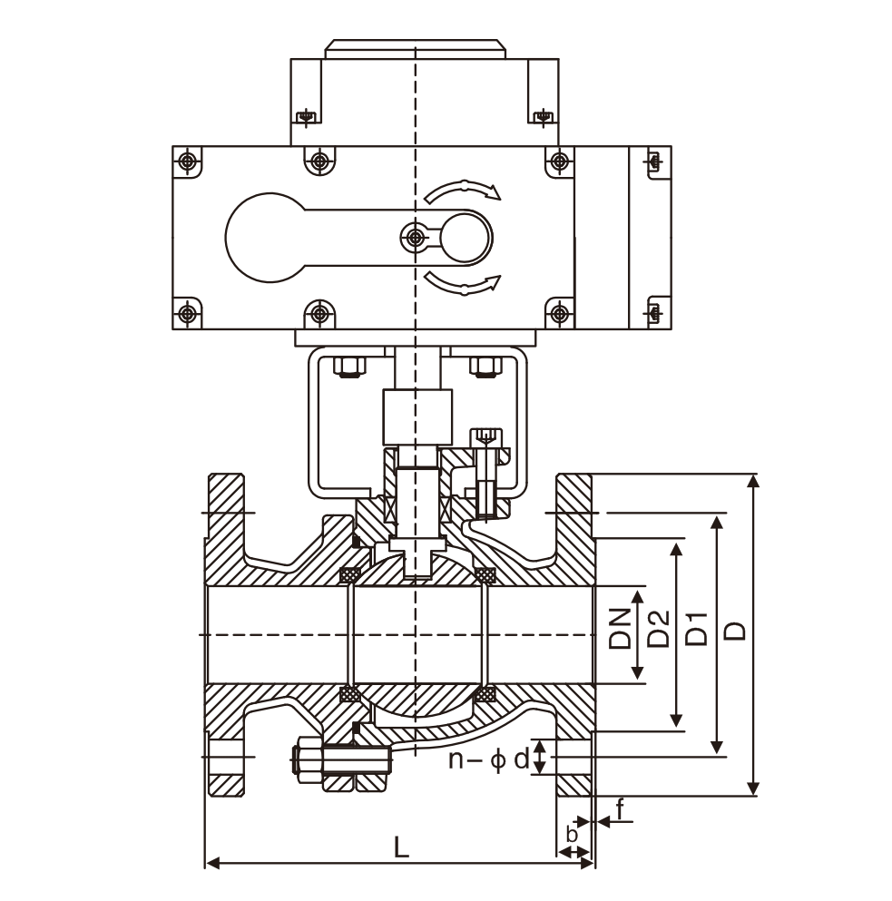
主要連接尺寸
| 公稱通徑 DN(mm) | 15 | 20 | 25 | 32 | 40 | 50 | 65 | 80 | 100 | 125 | 150 | 200 | 250 | 300 | |
| L | 130 | 140 | 150 | 165 | 180 | 200 | 220 | 250 | 280 | 320 | 360 | 400 | 630 | 750 | |
| H | 配PSQ | 275 | 280 | 287 | 312 | 312 | 325 | 335 | 365 | 400 | 420 | 440 | 470 | 545 | 580 |
| 配HQ | 360 | 370 | 380 | 392 | 392 | 415 | 425 | 445 | 490 | 510 | 530 | 560 | 635 | 670 | |
| 配361R | 360 | 370 | 380 | 392 | 392 | 415 | 425 | 445 | 490 | 510 | 530 | 560 | 635 | 670 | |
| W | 157 | 157 | 157 | 157 | 208 | 208 | 256 | 256 | 256 | 256 | 256 | 256 | 380 | 380 | |
| PN1.6MPa法蘭連接尺寸 | |||||||||||||||
| D | 95 | 105 | 115 | 140 | 150 | 165 | 185 | 200 | 220 | 250 | 285 | 340 | 405 | 460 | |
| D1 | 65 | 75 | 85 | 100 | 110 | 125 | 145 | 160 | 180 | 210 | 240 | 295 | 355 | 410 | |
| D2 | 46 | 56 | 65 | 76 | 84 | 99 | 118 | 132 | 156 | 184 | 211 | 266 | 319 | 370 | |
| n-φd | 4-14 | 4-14 | 4-14 | 4-18 | 4-18 | 4-18 | 4-18 | 8-18 | 8-18 | 8-18 | 8-22 | 12-22 | 12-26 | 12-26 | |
| PN2.5MPa法蘭連接尺寸 | |||||||||||||||
| D | 95 | 105 | 115 | 140 | 150 | 165 | 185 | 200 | 235 | 270 | 300 | 360 | 425 | 485 | |
| D1 | 65 | 75 | 85 | 100 | 110 | 125 | 145 | 160 | 190 | 220 | 250 | 310 | 370 | 430 | |
| D2 | 46 | 56 | 65 | 76 | 84 | 99 | 118 | 132 | 156 | 184 | 211 | 274 | 330 | 389 | |
| n-φd | 4-14 | 4-14 | 4-14 | 4-18 | 4-18 | 4-18 | 8-18 | 8-18 | 8-22 | 8-26 | 8-26 | 12-26 | 12-30 | 16-30 | |
| PN4.0MPa法蘭連接尺寸 | |||||||||||||||
| D | 95 | 105 | 115 | 140 | 150 | 165 | 185 | 200 | 235 | 270 | 300 | 375 | 450 | 515 | |
| D1 | 65 | 75 | 85 | 100 | 110 | 125 | 145 | 160 | 190 | 220 | 250 | 320 | 385 | 450 | |
| D6 | 40 | 51 | 58 | 66 | 76 | 88 | 110 | 121 | 150 | 176 | 204 | 260 | 313 | 364 | |
| n-φd | 4-14 | 4-14 | 4-14 | 4-18 | 4-18 | 4-18 | 8-18 | 8-18 | 8-22 | 8-26 | 8-26 | 12-30 | 12-22 | 16-33 | |
| PN6.3MPa法蘭連接尺寸 | |||||||||||||||
| D | 105 | 130 | 140 | 155 | 170 | 180 | 205 | 215 | 250 | 295 | 345 | 415 | 470 | 530 | |
| D1 | 75 | 90 | 100 | 110 | 125 | 135 | 160 | 170 | 200 | 240 | 280 | 345 | 400 | 460 | |
| D6 | 40 | 51 | 58 | 66 | 76 | 88 | 110 | 121 | 150 | 176 | 204 | 260 | 313 | 364 | |
| n-φd | 4-14 | 4-18 | 4-18 | 4-22 | 4-22 | 4-22 | 8-22 | 8-22 | 8-26 | 8-30 | 8-33 | 12-36 | 12-36 | 16-36 | |